Ентериер на книжарница Литература МК – Diamond Mall, Скопје / Платформа
22.10.2025 • Ентериер и мебел
Проектанти: Емил Јегени, Елена Икономов, Јасна Милојковиќ Муратовска, Веле Богоевски, Ана Момировска, Јосиф Николовски
Реализација: 2024
Автори: Архитектонско студио Платформа
Соработници: Сергеј Попоски
Инвеститор: Литература МК
Автор на фотографии: Васе Аманито
Контакт: www.weareplatforma.com
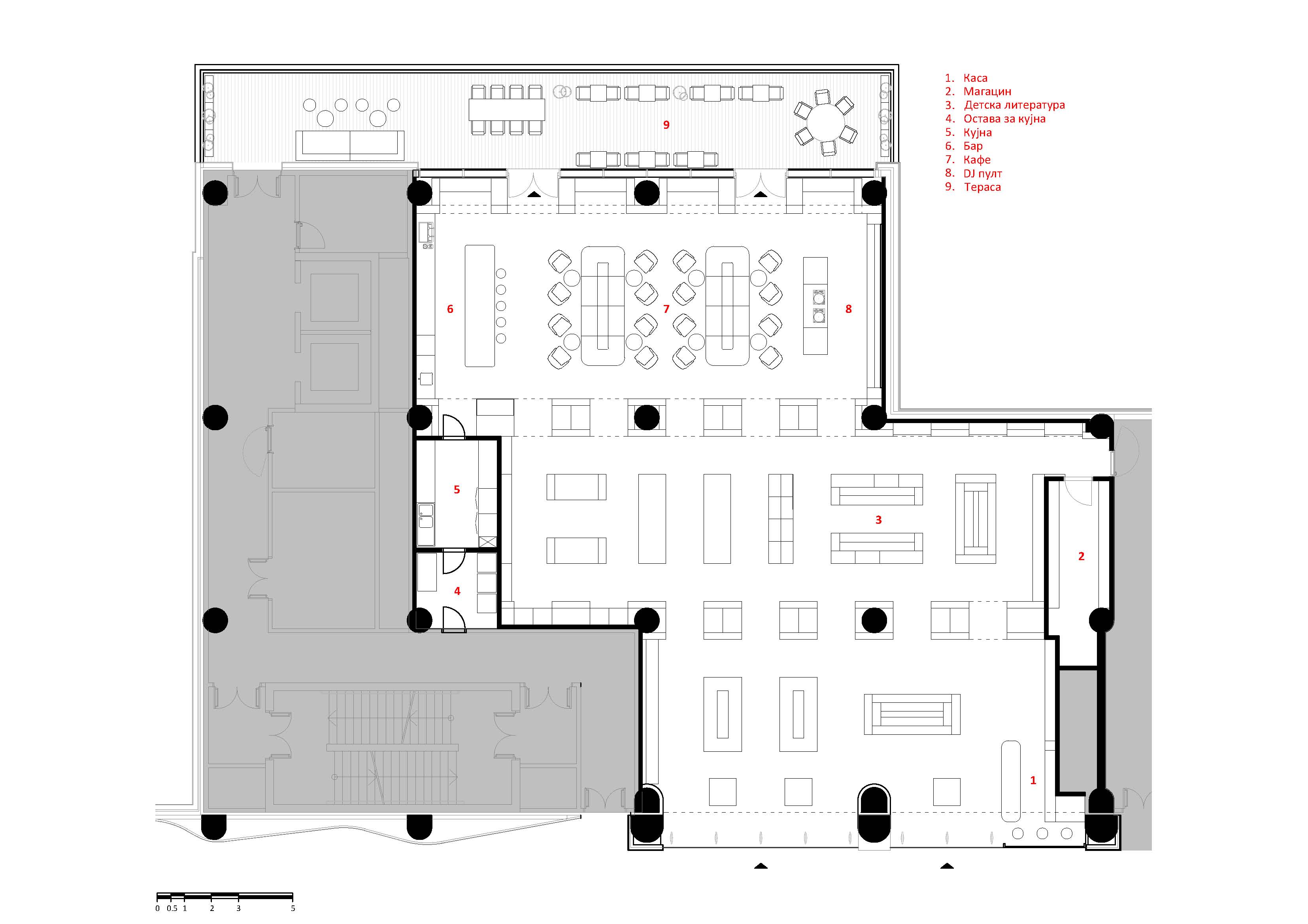
Проектот претставува ентериерно обликување на книжарницата „Литература МК“, сместена во новоизградениот трговски центар Diamond Mall во Скопје. Просторот со вкупна површина од 560 m², од кои 82 m² тераса, е третиран со целосен фокус на јасна функционална поделба и визуелно обединување.
Главниот концепт се темели на сегментирање на ентериерот преку систем на лаци – архитектонски портали кои создаваат проточност и прегледност, без да го нарушат чувството на просторност. Различните програмски зони – книжарница, изложбен простор, детски агол, кафе-зона – се одвоени, но сепак поврзани преку материјална и формална доследност. Формообликувањето на просторните елементи е реминисценција на старата железничка станица, како симболично враќање кон историјата на местото и контекстуална врска со градот.
Материјалната палета вклучува бетон како основен материјал, во комбинација со црн мебел и облоги и акценти од бакар, што создава индустриски, но истовремено топол и префинет амбиент.
Со внимателен баланс меѓу функционалност, атмосфера и просторна драма, овој проект ја реинтерпретира книжарницата како современ урбан простор за култура, интеракција и одмор.
Проектот е добитник на Награда за проект од категорија – реализација од областа на ентериер и дизајн на 22 Биенале на македонската современа архитектура.
Автор на статија: Filip Koneski
Ана Момировска / Веле Богоевски / Елена Икономов / Емил Јегени / Јасна Милојковиќ Муратовска / Јосиф Николовски / книжарница / литература / платформа















