АНТИЧКА МАКЕДОНСКА АРХИТЕКТУРА И УРБАНИЗАМ / Шерденковска
08.10.2025 • Литература
Автор : Меланија Шерденковска
Главен уредник : Раде Сиљан
Лектура : Елеена Георгиевска
Лектура на англиски текст : Виолета Христовска
Електронска реализација : Кристи Георгиевски
Рецензенти : проф д-р Марјана Јованов
Проф д-р Небојша Гаџиќ
Матица Македонска, Скопје, 2025
Следењето на развојот на објектите за живеење, како и воопшто на начинот на градење низ епохите, тлото на етничката карта на Македонија изобилува со дилеми и отворени прашања, заради малиот број отворени локалитети и нивното ниво на истраженост. Археолошките истражувања во нашата земја, освен неколку претходни откритија, главно, се развиваат во периодот по Втората светска војна. Локалитетите кои изобилуваат со податоци, артефакти и градби, полека се отвораат кон јавноста и на јавноста и ги презентираат достигнувањата на богатата Македонска култура.
Анализата на урбанизмот и архитектурата во оваа книга се направени осврнувајќи се на локалитетите од целокупната освоена територија од Александар III Македонски, со цел да се верификуваат релевантните вредности на архитектурата и урбанизмот во периодот на Античката Македонска Монархија, а посебно да се потенцираат разликите во однос на Хеленската и Римската архитектура и урбанизам. Само на тој начин можеме да дојдеме до ниво во кое оваа култура ќе ги добие своите заслужени термини – Македонски антички урбанизам и Македонска античка архитектура, односно Македонски период во светски рамки за целиот период на постоењето на Македонската Монархија.
Со цел да ги откриеме карактеристиките на античкиот македонски урбанизам, анализирани се главните принципи според кои се поставувани новите градови, односно урбанистичките начела на градоградењето, почнувајќи од Пела, како нова престолнина, но, главно, вниманието е задржано на градовите на новоосвоените територии Александрија, Пергамон, Антиохија, Селеукија, Гераса и Дура Еуропос.
Од сведоштвата за владеењето на наследниците на Александар III Македонски, четирите кралски македонски династии, заклучуваме дека тој го востановил системот, кој во наредните три века донел извонреден напредок на сите освоени територии. Поставени се темелите на новата културна рамка, времето на македонскиот период во историјата на светот. На подрачјето на урбанизмот во ова време постигната е критичка ревизија на планирањето на градот и просторот, воопшто, но и битни квантитативни и квалитативни иновации. Тоа е време на големи и динамични општествено-политички промени, проследени со интензивна урбанизација, посебно на подрачјата на Сирија, Палестина, Меѓуречјето и Египет.
Слика број 1. Организација на Александрија за времето на основањето на градот
Типовите на јавни објекти се анализирани според промените што ги носи новата архитектура на веќе постојните објекти, како и преку новите објекти. Сала за одбор, стоа, театар, библиотека се стандардните објекти на кралевите. Посебна обработка добиваат светилиштата, кои се вообличуваат во еден монументален и грандиозен комплекс. Разгледувани се новите типови на објекти кои се однесуваат на подземните гробници, едукативно-атлетските и комерцијалните објекти.
Анализата на станбените објекти се однесува на начинот на градење, применетиот материјал и конструкција за секој сегмент на градбата, начинот на обработка на материјалот, ентериерното уредување, со анализа на некои елементи на уредувањето, како и нивната диспозиција во однос на другите градби, условите на локацијата, осончувањето, проветрувањето, доведувањето на вода во објектите, како и дренажата на отпадната вода од објектот и од градот. Третирани се и елементите на урбанизација на градовите, до онаа мерка до која дозволуваат истражувањата на локалитетите.
Палатите се анализирани преку двата примера на палати, онаа постарата – палатата во Вергина и поновата – палатата во Пела. Анализата се однесува на концепцијата и организацијата на палатите, на начинот на градење, употребата и промената на востановените стилови, како и нивната декорација.
Резултатите од вака поставената анализа доведува до неколку нивоа на заклучоци.
Првото ниво на заклучоци се однесува општо на каркатеристиките и развојот на македонската архитектура и урбанизам, анализирани од периодот на железното време, па сѐ до крајот на македонскиот период, реализирани на територијата на распространувањето на Македонската држава, во времето на Александар Македонски, преку владеењето на македонските кралски династии на дијадосите, сѐ до потпаѓањето на Египет и на последната кралица, од династијата Птоломеиди – Клеопатра, под римска управа. Од изложениот материјал, кој се однесува на карактеристиките и развојот на урбанизмот и архитектурата, можеме да заклучиме дека тие имаат свој сопствен пат и развој, кој е единствен и различен од тогашната Хеленска архитектура и урбанизам, како и од карактеристиките на архитектурата и урбанизмот на останатите дотогаш познати и цивилизирани држави. Бележејќи ги неговите посебности и неговиот само по себе својствен развој, како посебен ентитет, доаѓаме до потребата за поставување термин, кој во себе ќе ги содржи овие посебности, развивани во Македонската држава. Затоа, во ова дело ги поставуваме карактеристиките и развојот, обединети низ термините – Македонска античка архитектура и Македонски антички урбанизам, а целиот процес на проширувањето и распростирањето на оваа архитектура и урбанизам, како, впрочем, и целата уметност, наука и достигнувања, воопшто култура, низ целата освоена територија како Македонски период во развојот на светската култура и уметност.
Второто ниво на заклучоци се однесува, воопшто, на генералните карактеристики на македонскиот антички урбанизам, кој почнува да се вообличува во сосема посебен ентитет со веќе оформени сопствени карактеристики при поставувањето и оформувањето на новата престолнина Пела. Сѐ она што низ неколкувековниот развој се напластило како искуство во градоградењето, доследно се поставува низ урбанистичките принципи применети при оформувањето на овој град. Пред сѐ, тоа е правиот агол, доследно применет на целата структура на градот, односно четириаголната мрежа на улици и градски блокови, кои опфаќаат еден или повеќе објекти. Втората карактеристика се однесува на поставувањето на димензиите на блокот. Тој е на целата територија на градот со еднаква широчина, додека променлива е неговата должина поставена низ три различни вредности, кои ритмично се повторуваат, а преку која е разбиена можната едноличност и монотоност на градот, напротив, се потенцира чувството на монументалност, поставено низ правилниот правоаголен систем на улици и блокови. Во една вака поставена шема на градот, објектите со поголеми димензии отколку што е големината на блокот, се поставени во неколку споени блокови, а нивната големина се поставува така што да заземе простор од цел број пати внесена вредност на единечниот блок.
Низ планирањето и изведбата на овој град ја следиме и употребата на арки и сводови, елементи кон кои грчката архитектура не го поставила својот интерес, а толку карактеристични за македонската архитектура. Тоа се елементи преку кои многу поедноставно се носат товарите и се совладуваат поголеми распони, а се појавуваат како неопходно потребни при поставувањето на терасите и суштински неодминливи при изведбата на подземните гробници, за совладување на товарот на земјата. Освен утилитарната функција, за совладување распони и товари, лачната форма и сводот се употребувани како елементи кои го вообличуваат естетското доживување на просторот, како, на пример, источниот влез во Приена.
Во Приена се сретнуваме со уште една новина на македонскиот урбанизам а тоа е оформувањето на фасадите кон улицата со колонади од столбови, кои се изведувани пред веќе изградените објекти со кои е создавана наткриена пешачка патека, а во исто време се создава ѕид -кулиса, со кој се изедначува висината на објектите вдолж улицата.
Со сите овие елементи бил постигнат воодушевувачки ефект однадвор, исто онолку колку и во самиот градски простор. На овој начин градот станал доживување, кое се случува вдолж патиштата, за да биде доближен во пресметан архитектонски манир, за да се помине низ него грандиозно и да се постигне декоративен континуитет до следното случување.
Третото ниво на зaклучоци се оние кои се однесуваат на типовите на јавни објекти, градени во македонскиот период. Стандардниот лист на објекти дотогаш градени -– сала за одбор, стоа, театар, библиотека добиваат нова разработка.
Големи промени во македонскиот период претрпеле стоите. Од вообичаените прави и издолжени или во вид на буквата L, вообичаено градени во класичниот хеленски период, сега се појавуваат стои во вид на буквата П или потполно затворени квадрати. Агорите комплетно се затвораат со стои и се обликуваат во правилни форми. Се појавуваат двострано отворени стои. Вообичаено се користел дорскиот стил, меѓутоа, во една изменета форма – со растојанија помеѓу столбовите, како во јонскиот стил и со декорација од триглифи и метопи.
Во македонскиот период театарот добива нова обработка – од камен изработени седишта, односно, кавеа, наместо претходните дрвени и, исто така, висока и изградена сцена, наместо претходните времени објекти. Кавеата е секогаш поголема од половината на еден полукруг, што е и основна карактеристика на Античкиот македонски театар, заедно со нејзиното поставување на терен во пад, со што таа сосема природно налегнува на него. Исто така, оркестрата е секогаш цел круг, за разлика од Римскиот театар, каде што таа е половина круг. Добри примери за ова тврдење се театарот во Атина, со доградбите во Македонскиот период, како и театарот во Приена. За време на Македонскиот период се појавува тенденција објектот зад сцената да биде многу повисок и многу подекориран со фасада од столбови. Можеби ниедна друга градба не добива толку многу имагинативно внимание како театарот. Слободата во креирањето на ѕидните слики, овде била најиздашна. Во суштина и целиот град бил компониран како серија од изложби, улиците, агорите и околината на храмовите.
Монархијата дала свежо поттикнување на подземните гробници, но големината и издашноста не биле поголеми од оние од класичното време. Подземните гробници во Македонија често биле конструкции со свод со импресивна погребна програма, која вклучувала и мурални слики и обилност од убави и скапоцени објекти. Најубавите примери на подземни гробници се во Вергина, во Големиот тумулус и во останатите помали тумулуси. Гробот на Филип II, има дорска фасада со прекрасно насликан фриз, во гробницата на Персефона има прекрасни цртежи во главната просторија, гробот на принцезата има дорска фасада со исклесани и обоени штитови, гробот со слободностоечки столбови, како што кажува и самото име има фасада не со пиластри туку со столбови, додека Ромаисовиот гроб има јонска фасада со четири пиластри, а во погребната просторија покрај одарот е поставен трон. За разлика од овие, подземните гробници во Александрија содржеле раскошна просторија која имитирала фантастичен современ домашен ентериер. Во Палмира сретнуваме високи подземни гробници, составени од неколку нивоа, со свод затворен на најнискиот кат, отворен кон екстериерот. Погребните монументи на династиите, како Мавзолејот во Халикарнас, навистина, биле величествени.
Слика број 2. Реконструкција на фасадата на гробницата на Филип
Слика број 3. Макета на гробницата на Филип во Вергина
Во македонскиот период големо внимание се посветувало на науката и уметноста. За да се помогне нивниот развој биле градени библиотеки. Втора по големина после Александриската била библиотеката во Пергамон. Според античките извори таму требало да има 200.000 пишани документи. Овие документи биле чувани во други објекти кон северната страна. Еумен II работел многу за да добие библиотеката вредност со светско реноме. Кралот успеал да ги привлече уметниците и научниците во Пергамон. Така, Пергамон станал вториот по големина научен и уметнички центар.
Освен стандардните типови на објекти имале барања за поставување на нови од кои најмногубројни се однесуваат на атлетско – едукативните и комерцијалните дисциплини.
Новиот вид на објекти од првата категорија, кој е и главен, вклучува во себе гимназиум и други многу поспецијализирани институции како што се боречките школи или палестра. Овие објекти се развивале околу голем дворишен простор, опкружен со колонада од столбови, каде едната страна служела и како лента за трчање, зад која се наоѓале потребните простории. Ваквата концепција е прифатена заради основното правило на школите – развојот на телото и умот. Некои се многу големи како Гимназиумот во Олимпија, а само нешто помал е Гимназиумот во Приена. Во Пергамон имаме еден комплексен објект, кој во суштина е и најголемиот профан објект во градот. Тој е составен од три целини, поставени на три тераси, кои се опремени – најнискиот Гимназиум е за најмалите деца, средниот за повозрасни деца, додека највисокиот е за возрасни ученици.
Слика број 4. Основа на комплексот на гимназиуми во Пергамон
Во македонскиот период, исто така, биле развивани и стадионите. Тие добиле седишта изработени од камен. Стадионот во Епидаурус го докажува ова тврдење. Стадионот во Светилиштето на Зевс во Немеја има пасажи под гледалиштето со полукружен свод. Слични пасажи со свод има и во Епидаурус и Олимпија, вообичаено биле датирани од римскиот период. Но, очигледниот доказ во Немеја е убедлив доказ дека тие подобрувања се однесуваат на Македонскиот период.
Уште еден важен дел од архитектурата во Македонскиот период биле тврдините. За разлика од тврдините во класичниот период кои биле изработени од глинени тули, сега тие се ѕидани исклучително од полигонални камени блокови, со различна исполнетост. Ѕидањето било вообичаено тешко и грубо за да остави силен впечаток. Кулите на тврдините биле градени повисоко за одбрана од артилеријата. Ѕидовите, генерално, најдобро се зачувани во далечните и помалку значајни градови: има исклучителни примери во Хераклеа близу Милет и во многу добра состојба се зачувани во градовите идентификувани како Цидна (Cydna) и Ликија (Licia).
Во поглед на изградбата на храмовите, постојат специфичности од кои никако не се откажувале. Тоа е изградбата на мал храм, со исклучително скромни димензии. Во наосот има простор само за олтарот на кој се поставувани даровите. Предниот дел на храмот или пронаосот е решаван како тетрастил, односно како трем на четири столба. Иако Македонската Монархија, односно монархиите на диадосите, по Александровите освојувања имале потреба од изградба на монументални религиозни комплекси, кои ќе ја потенцираат моќта и јачината на државата, сепак, архитектите останале со голема почит кон основната архитектонска матрица на храмот и тој останал во својата основна форма и димензии. Потребата од монументалност ја решавале многу досетливо и различно.
Затоа, посебно монументално и грандиозно била обликувана околината на храмовите. Пристапот до храмот и вкупно целата негова околина била обликувана со долги колонади од столбови, всушност стои и најчесто била решавана на неколку нивоа – тераси. Најкарактеристични решенија на вака обликуваниот простор се Светилиштето на Асклепиос на Кос и Светилиштето на Атина Линдаија.
Слика број 5. Светилиште Асклепиос на Кос
Слика број 6 Светилиште на Атена Линдаиа
Контрастот помеѓу малиот затворен храм и терасата од неколку нивоа блиско физички го трансформираат карактерот на грчкиот град кон Македонското Кралство. Храмот и агората – двоен фокус на независниот и самиот на себе доволен град држава, и двата се претворени до величественост, со централизирана традиција, поставена од Александровите освојувања и продолжена од неговите наследници.
Напротив, во Дидим се појавува грандиозен и монументален храм, кој претставува околина на внатрешно поставениот мал по димензии вистински храм. Монументалниот храм е поставен со двоен перистил и длабок внатрешен претпростор, исполент со столбови. Тој, главно, ги следи формалните поставки на архаичните храмови во Мала Азија, како и неговиот претходник. Но во Дидим промените се револуционерни. Јонскиот ред поминал низ огромни приспособувања во IV и III век пр.н.е. Реформите на пропорциите, во овој објект создале најтенки и највисоки столбови, како и најголеми растојанија помеѓу нив. Во Дидим кај надворешните столбови висината е речиси десет пати поголема од нивниот дијаметар или тие се високи цели 20 м, и тие се највисоките и најтенките столбови од кој било објект изграден дотогаш.
Централната оска завршува со отвор, но преминот низ него е затворен со ниски ѕидови. За да се влезе во храмот, треба да се помине низ еден од двата странични влеза. Патот од тука води преку засводени рампи, кои се темни и тесни но, водат кон долниот дел и потоа излегуваат со заслепувачки ефект во голем хол отворен кон небото. На крајот на холот, каде што се очекува да е поставена култната статуа во една вообичаена цела, поставен е минијатурен храм – простил, како претстава во претстава, со останатите елементи на Аполоновиот возвишен простор, како што е фонтаната и ловоровиот венец, во близината.
Слика број 7. Основа на храмот во Дидим
Слика број 8. Изглед на храмот во Дидим
Четвртото ниво на заклучоци се однесува на станбената изградба. Во оваа тема се анализирани два локалитета од Македонија – Вардарски Рид и Исар – Марвинци, а споредени со локалитетите од северниот дел на Грција, а кои му припаѓале на Античкото Македонско Кралство – Петрес, Пела и Олинт, како и споредбата со Приена, како претставник на реконструираните градови од Мала Азија.
Генерално, можеме да заклучиме дека на станбените објекти е посветувано посебно внимание и тие се со богата внатрешна содржина и организација. За разлика од нив, хеленските станбени објекти, од тоа време, се многу скромни дури и сиромашни, и се поставени на една крајно неправилна шема со тесни и кривулести улички, кои според Аристотел се ,,неразбирлива тајна за странците, односно лавиринт за непријателите.” Тоа се, главно, неправилни објекти, најчесто приземни, а само понекаде се појавува по некое мало двориште. Сѐ до македонското време во хеленското општество не биле примерни раскошот и истакнувањето на материјалното богатство. Но, освен тоа, хеленската куќа ја одредувал фактот дека хеленскиот човек живеел интензивен јавен живот и најголемиот дел од своето време престојувал на отворените простори на агората, ареопагот, во палестрата, театарот или во акрополата. Затоа е разбирлива неговата релативна рамнодушност спрема интимноста на куќниот амбиент и куќата како симбол на неговиот општествен статус.
Напротив, македонската куќа се развива под влијание на двете палати, најчесто низ едно, но кај побогатите објекти и низ неколку внатрешни дворишта, кон кои се ориентирани сите внатрешни простории. Мозаичните подови ги заменуваат поплочувањата со природен камен, а ѕидовите, освен што се малтерисани со многу квалитетен малтер, се фарбаат со бои, преку кои е создавана илузија на инкрустација со мермер, или, пак, илузија на некои архитектонски мотиви. Финалната обработка на столбовите, исто така, била со високо квалитетен малтер, кој се обработува во вид на канелури, за оформување на дорскиот, јонскиот или коринтскиот стил.
Дури и просечната македонска куќа секогаш има внатрешен двор, кој е редовно поплочен, систем на довод и одвод на вода, бања со када, кујна и просторија за престојување на семејството, машка просторија или трпезарија, неколку споредни простории за чување на храната, работилница или продавница, во зависност од ангажманот на семејството, а на катот се поставени спалните простории, како и просториите за послугата. Станбените објекти редовно биле ориентирани кон внатрешниот двор, а, речиси, комплетно затворени кон улицата, освен доколку во склопот на куќата не постоела продавница. Почнувајќи од новоизградената престолнина Пела, градското милје било редовно поставувано во правилна правоаголна шема, а разликите се појавувале во големината и формата на карактеристичните блокови составени од станбени единици. Типичен станбен блок со строго квадратен облик наоѓаме во Приена со по четири станбени единици, а издолжен тип на блок со двоен редослед во Олинт. Тоа биле општоприфатените модели на урбаната структура на новиот македонски град.
Слика бр. 9. Промена на карактеристичниот станбен блок во зависност од позицијата во блокот во Олинт
Слика бр. 10. Реконструкција на еден станбен блок во Олинт
Како трет тип на станбена изградба, кој е и најкарактеристичен за тесното грчко подрачје е неправилниот тип на блокови и куќи изградени во текот на III – II век на Делос, кои не се подложуваат на диктатот на ортогоналите и геометриските стандарди, туку ја продолжуваат традицијата на слободен и неправилен план. Еден синтетски вид од претходните три типа на блокови, се појавува во градовите Петрес и на локалитетот Вардарски Рид, кај кои на една шема на тесни и кривулести улички се појавува станбен објект, кој се стреми кон правилен четириаголен објект, и е таков на слободните страни, а неправилноста се појавува на страната, односно ѕидот, кој се допира до улицата. Исто така, на овие два локалитета се појавува поскромен станбен објект, кој не се развива околу внатрешниот двор, туку е отворен кон улицата, а неговите отворени простории се поставуваат во вид на трем и чардак. Овој простор се користел во летниот период како пријатно катче за работа, но и за одмор.
Слика број 11. Реконструкција на изгледот на куќата со занаети од Вардарски Рид
Во структурата на сите типови станбени објекти, можеме да ја распознаеме основната нишка која се провлекува низ вековното градителство на овие простори. Тоа се двата градбени простора, околу кои се одвива целокупната концепција на домот – тремот и чардакот. Создадени како едноставен, но многу инвентивен и конструктивен одговор, на потребите за квалитетен станбен простор и како резултат на климатските услови, за овие простори имаме сведоштва дека егзистирале низ период од 25 столетија и во најголема мерка го дефинирале квалитетот на живеењето. Разгледувајќи ја куќата од античкиот период, ги наоѓаме традиционалните елементи – трем и чардак, веќе оформени, како конструктивен и реален одговор на поставените барања за организација на просторот но и на карактеристичните климатски услови во кои се развива оваа куќа. Овие два елемента се застапени како во едноставните мали објекти, кај неправилната градска структура, во станбените блокови од ортогоналната градска шема, речиси редовно во делот кој е ориентиран на југ, но и во богатите решенија на помалите палати, како и во кралските палати. Нивната употреба, континуирано опстојувала во помал или поголем обем низ 25 столетија, за да ги достигне своите врвни креации низ традиционалната архитектура од XIX век.
Петтото ниво на заклучок се однесува на изведбата на палатите. Двете палати на кралското семејство, од јадрото на Античката македонска држава, онаа постарата во Вергина и поновата, во новоизградената престолнина Пела, претставуваат најраскошните станбени објекти од античкиот период на Балканскиот Полуостров. Двете палати имаат слична концепција – обиколени се со перистил, а нивните внатрешни простории се ориентирани кон внатрешниот двор. Суштинската разлика се однесува на тоа што палатата во Вергина е организирана околу еден голем внатрешен двор, додека онаа во Пела, околу три внатрешни дворишта и едно крило, кое од непознати причини никогаш не е завршено, кое, веројатно, требало да биде четвртото крило, организирано повторно околу внатрешниот двор.
Концепцијата на палатата во Вергина е препознатливо едноставна, бидејќи претставува објект со еден централен внатрешен двор, околу кој се поставени просториите. Енормно големиот перистил, кој го формираат четири големи портици е поставен на 60 јонски столбови и е опкружен со четири големи дорски портици. На јужната страна се наоѓаат огромните простории со прекрасни мозаични подови, кои биле официјални простории на палатата, во кои се одржувале познатите забави наречени simposia. Исто така, на западната страна се поставени три големи простории со прекрасни мозаични подови, во кои се одржувале свеченостите – банкетите. Мозаичните подови сведочат за умешноста на мајсторите кои ги изработиле на високо уметничко ниво. Импресивните мермерни прагови, мозаичните подови, дорските и јонските колонади, како и исклучителните скулпторски остварувања го покажуваат богатството и сјајот на објектот.
Во овој момент мора да се потенцира дека ниту дорските ниту јонските столбови не се оформени како во нивниот основен вид. Така јонските столбови во внатрешниот двор се појавуваат во една композитна форма, каде што нивното тело е со форма на елипса, на која канелурите се појавуваат на полукружните делови на едната и на другата страна.
Слика број 12. Реконструкција на основата на палатата во Вергина
Слика број 13. Реконструкција на изгледот на палатата во Вергина
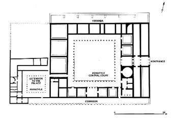
Комплексот на палатата во Пела е комплетно интегриран во урбаното милје на градот, што наведува на заклучокот дека е градена во исто време кога и градот. Концепцијата на палатата е составена од три сегменти кои се одвиваат околу внатрешните дворишта со перистил. Двете јужни крила на палатата имаат заедничка фасада, која е обединета со две дорски стои, а ходникот што ги спојува двете крила, завршува со нагласен влезен пропилон. Овие две предни крила на палатата, според начинот на нивната обработка и големината на просториите, се претпоставува дека биле нејзиниот репрезентативен дел. Третото крило кое се наоѓа на север од нив, има релативно помали простории, но и една од нив, за која се претпоставува дека била базен.
Енормно големиот простор, во кој престојувала македонската династија, најверојатно, не бил само резиденција на кралското семејство, туку во него биле сместени административните и воените служби.
Слика број 14. Реконструкција на основата на палатата во Пела
Анализираните карактеристики на урбанизмот и архитектурата ја потврдуваат поставената теза за нивната посебност, различност и самостојност, односно исклучително самостоен развој, поставуван и оформуван, надградуван врз база на сопственото истражување на недостатоците на дотогашниот развој. Затоа и се појавува потребата за поставување на нови термини, преку кои ќе биде детерминиран ентитетот – односно Македонски антички урбанизам и Македонска античка архитектура, а во однос на целокупниот развој и карактеристики на севкупната уметност, култура и воопшто цивилизациски развој – Македонски антички период во светски рамки развиван во период од два века, започнувајќи од походите на Александар Македонски, преку кралските династии на дијадосите, сѐ до потпаѓањето под римската власт.
Автор на статија: Filip Koneski
АНТИЧКА МАКЕДОНСКА АРХИТЕКТУРА И УРБАНИЗАМ / литература / матица македонска / Меланија Шерденковска




