ИНДУСТРИСКИ ОБЈЕКТ – РЕСЕН / Параметар
28.10.2025 • XXI век
Автори: Методи Хаџи Андов, Димитар Стефановски, Сашо Андријевски, Игор Сугарчев,
Соработници: Сандра Ацов, Елена Марковска, Елеонора Михаиловска
Студио: Параметар
Година на проектирање : 2025
Локација: Ресен
Инвеститор: Приватен
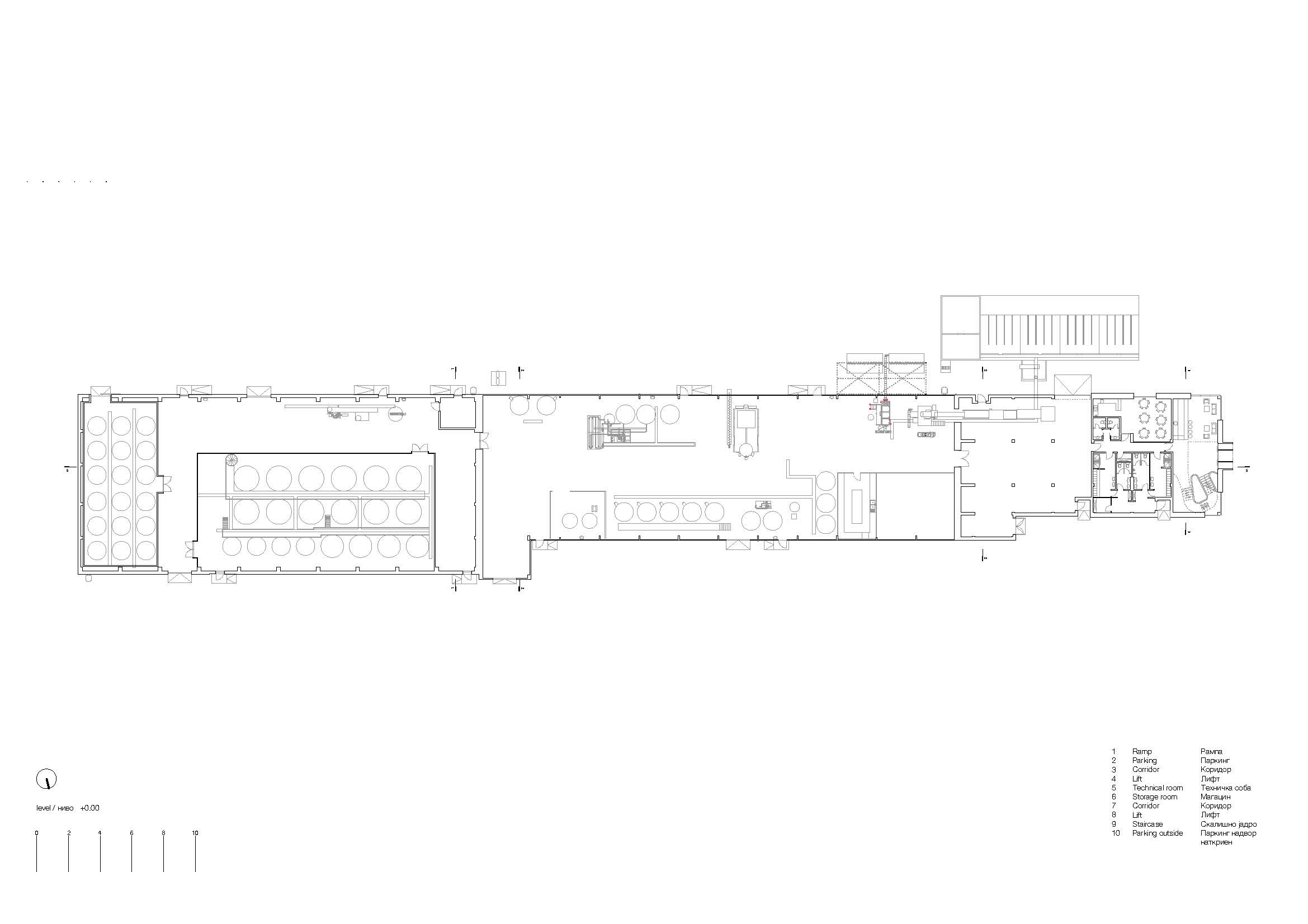
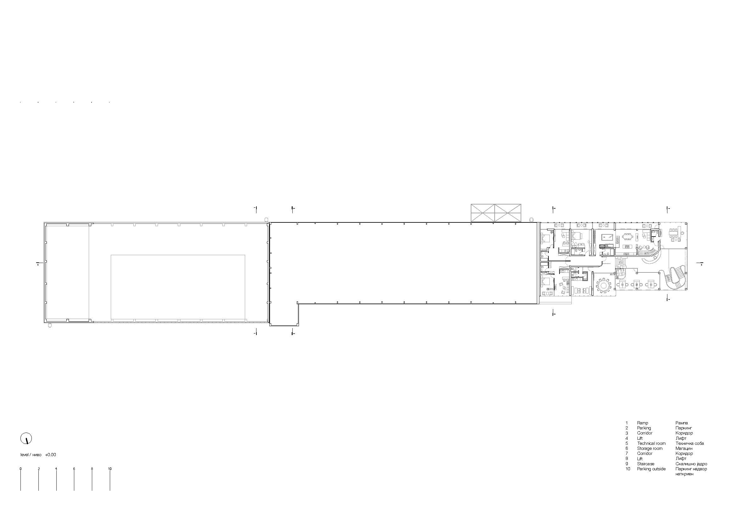
Проектот за фабрика за производство на сокови во Ресен е сместен во источната индустриска зона на градот и е замислен како функционален и визуелно впечатлив комплекс што следи јасна просторна логика. Објектот е поделен во три зависни целини: административен блок со апартмани за преноќување, производствена хала и магацин за складирање на сокови во танкови.
Првата целина се карактеризира со транспарентна фасада од големи стаклени површини, кои каскадно се редуцираат накај внатрешноста на комплексот, нагласувајќи ја репрезентативната улога на влезот и фоајето со двовисински простор. Производниот и магацинскиот дел се третирани како современи индустриски волумени, каде што доминира лимена фасадна обвивка со динамична волуменска игра и јасен конструктивен ритам.
Архитектонскиот јазик е чист и рационален, со нагласок на материјален контраст, транспарентност и маса. Проектот воспоставува рамнотежа помеѓу функционалност, просторна економичност и визуелна идентификација, соодветна за современа агро-прехранбена индустрија.
Автор на статија: Filip Koneski
Димитар Стефановски / Елена Марковска / Елеонора Михаиловска / Игор Сугарчев / Индустриски објект / Методи Хаџи Андов / производство / Ресен / Сандра Ацов / Сашо Андријевски









