КУЌА ИЛИНДЕН / Радоњиќ Архитекти
16.10.2025 • XXI век
Автори: Ана Радоњиќ, Александар Наумчески
Консултант: Миодраг Радоњиќ
Студио: Радоњиќ Архитекти
Проектирање: 2024/25
Локација: Општина Илинден, Македонија
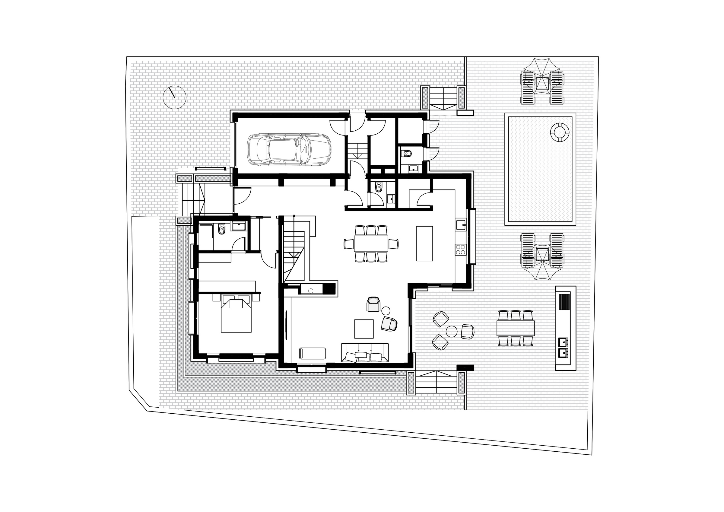
Површина на локација: 500м², Површина на објект П+1: 290м²
Индивидуален станбен објект за четиричлено семејство, проектиран со чисти линии и јасна геометриска композиција. Отворените фасадни површини овозможуваат силна врска со околината, додека динамичните волумени создаваат хармонија помеѓу приватниот и заедничкиот простор.
Приземјето е подигнато поради нивелација со теренот, кој е во благ пад. Во неговиот состав се вклучени влез со трем, влезен хол со скалиште кон катот, гостински тоалет, технички простории, кујна со трпезарија и дневна соба што преку тераса се отвора кон задниот двор. Во овој дел е сместена и родителската спална соба со сопствена бања. Предвидена е и гаража на нивото на пристапот од предната страна на дворот.
Со скалите од влезниот хол се пристапува до катот кој се развива над дел од приземниот габарит. На овој кат се предвидени централен хол, работна соба, бања, утилити-просторија, две спални соби и наткриена тераса.
Автор на статија: Filip Koneski
Александар Наумчески / Ана Радоњиќ / индивидуално домување / КУЌА ИЛИНДЕН








