Гимназија „Никола Карев“, Скопје / 1969
25.07.2025 • ХХ век / II половина
Година: 1969
Автори: Јанко Константинов
Локација: Карпош 3, Скопје
Во историјата на архитектонската мисла позната е вечната амбиција на архитектот-творец со својот објект да остави траги и индивидуален печат во околината и амбиентот.
Низ целиот свој творечки опус авторот Јанко Константинов истражува, споредува, студира и анализира и токму затоа повеќето негови остварувања имаат изграден специфичен автохтон стил и индивидуализирана форма.

Во училишниот објект „Никола Карев“ изграден во населбата Карпош 3 во Скопје и предаден во употреба во далечната 1969 година препознатливо е настојувањето на авторот за индивидуален обликовен концепт. Структуралноста, драматичноста и единството на техничката и естетската форма се основните одредници на архитектониката на зградата.
По нејзиното завршување, средното училиште „Никола Карев“ беше наградено со наградата „Борба“ (плакета на НИП Борба) за најдобро достигнување во Македонската архитектура во 1969 година. Средното училиште е изградено во станбената населба Карпош 3, изградена како резултат на проширувањето на градот кон запад кон крајот на 1960-тите. Зградата е сместена во непосредна близина на Детската библиотека „Другарче“ и поликлиниката „Букурешт“ (доделена од Романија по земјотресот како гест на солидарност за Скопje).

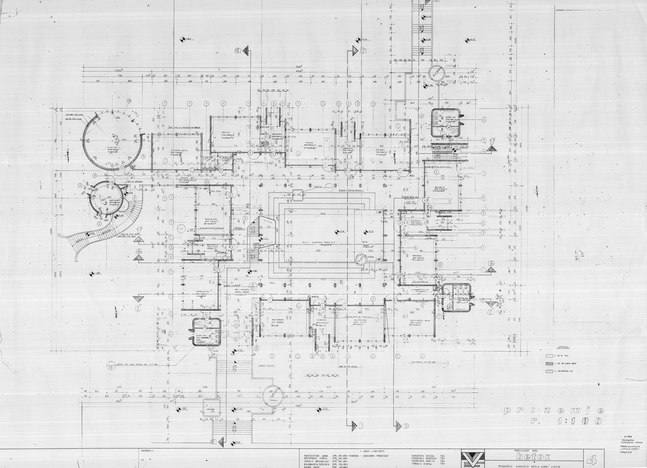
Просторната структура на средното училиште е составена од две независни архитектонски единици – поголема училишна зграда и помала спортска сала. Со капацитет од над 1.400 ученици, средното училиште е модерна училишна зграда со едноставна и јасна просторна организација – приземјето и првиот кат се ориентирани кон централниот заеднички простор (аула), неколку скалила пониски во однос на приземјето.
Аулата се протега во вкупната висина на зградата, нудејќи богата зенитална светлина со своите пирамидални фенери. Планот на зградата го покажува моделот на мултипликација на училници и модул со мали наставнички канцеларии, организирани во периметар околу централниот простор на аулата. Сервисните простори се наоѓаат во посебни, заоблени волумени, на три агли од зградата, додека четвртиот (северозападен) агол ја сместува кружната кула со училниците за музика и уметност.

Ова раздвојување на функциите, обично услуги, но и простори со специфична употреба во препознатливи архитектонски форми, нагласени и во планот и во просторниот распоред на зградата, е честа и карактеристична тема на бруталистичката архитектура. Спортската сала е сместена во посебен волумен, во непосредна близина на главната зграда, придружена со мал отворен амфитеатар на северната страна од парцелата.
Со вештото пласирање на повеќенаменската сала во средиштето на објектот е добиена основа која со низа рафинирани решенија на внатрешноста е добиен цврст и хомоген волумен. Цврстата маса на бетонот надополнет со внимателно одбраниот прозорски растер од алуминиумски профили се единствените материјали со кои е обликуван екстериерот.


Бетонските полни површини Јанко Константинов ги моделира во впечатливи скулптурални форми и облици при тоа употребувајќи повеќе симболи и до перфекција изработени детали, а се со желба да со својот објект го драматизира традиционалното урбанизираниот околен простор.
Со формата како оптимален израз на функцијата потенцирано е не само значението на училишната зграда туку и високиот степен на обликовната индивидуализирана изразност.


Извори: „Архитектурата во Македонија 1969-1989“, Александар Кочишки; Architectuul.
Насловна фотографија: Бетонско Скопје 2
Автор на статија: Martina Shteriova
Брутализам / Гимназија Никола Карев / Јанко Константинов / Скопје




